 |
 |
"building construction V + VI - orangerie/palm house bethman park"
diploma - main subject
winterterm 2004/05 + summerterm 2005 (8th/9th term)
diploma examination note: 1,3
20 plans din a1; model m 1:500; model m 1:10
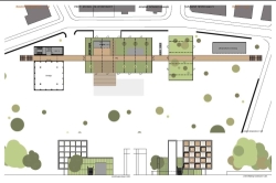
tasks was to sketch an orangerie/palm house and offices in bethman the park, frankfurt/main with workshop and consultation, botanic library, exhibition area and cafe.
concept: parallel to the street along the park a continuous bar penetrates and connects different building parts.
the office building is a rested cube on supports (concrete-build),
orangerie + palm house are glass-halls (steel structure) and
there are concrete boxes in the orangerie containing the library and cafe.
|
 |
|
|
 |
|